西鉄五条駅まで徒歩10分、室内洗濯機置き場
| 賃料 / 管理費 | 7.9万円 / 無 | 敷金 / 礼金 | 無 / 2ヶ月 |
|---|---|---|---|
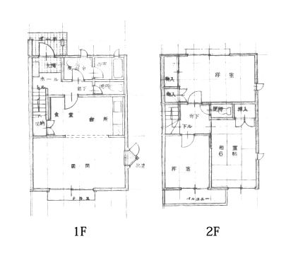
| 間取り / 面積 | 3LDK / 84.46㎡ | 築年数 | 築32年7ヶ月 |
| 住所 | 太宰府市五条五丁目5-7 | ||
| 交通 |
|
||
| 種別 | タウンハウス | 駐車場 | 空有 7,700円 |
|---|---|---|---|
| 物件構造 | 木造 | 所在階 / 階数 | 1階 / 2階建 |
| 間取り内訳 | 専有面積 | 84.46㎡ | |
| 主要採光面 | ― | 引渡し | 相談 |
| 設備 |
|
||
| 備考 | |||
| 小学校区 | 太宰府東小学校 | 中学校区 | 太宰府中学校 |
| 物件番号 | b2211968 | 取引態様 | 仲介 |
| 現況 | 空家 | 有効期限 | 2025年12月24日 |