アンピール大橋南 106

広々LDK12畳以上、人気の分譲タイプ
賃料 / 管理費 9.5万円 / 無 敷金 / 礼金 2ヶ月 / 無
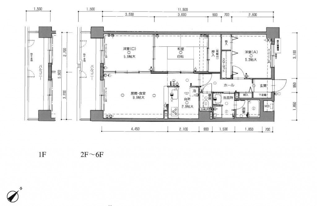
間取り / 面積 3LDK / 66.87㎡ 築年数 築31年11ヶ月
住所 福岡市南区横手一丁目5-6
交通
  • 西鉄天神大牟田線
  • 井尻駅
  • 歩16分
  • 西鉄天神大牟田線
  • 大橋駅
  • 歩20分
  • JR鹿児島本線
  • 笹原駅
  • 歩30分
外観画像
外観画像
間取り図
間取り図
種別 マンション 駐車場 近隣確保 7,700円
物件構造 RC造 所在階 / 階数 1階 / 6階建
間取り内訳 LDK12.8/和6/洋5.8/洋5.3 専有面積 66.87㎡
主要採光面 引渡し 相談
設備
  • 分譲タイプ、
  • 外観タイル張り、
  • システムキッチン、
  • カウンターキッチン、
  • 3口コンロ以上、
  • 3口、
  • 対面キッチン、
  • コンロ設置済み、
  • ガス、
  • 設置済み、
  • フローリング、
  • 収納スペース、
  • クロゼット、
  • シューズボックス、
  • 押入れ、
  • TVモニタ付きインターホン、
  • インターホン、
  • 都市ガス、
  • 電気、
  • 給湯、
  • エレベータ、
  • 駐輪場、
  • 敷地内ゴミ置き場、
  • ゴミ置き場、
  • バイク置場(屋外)、
  • 地上デジタル、
  • トイレ、
  • バス・トイレ 別室、
  • シャワー、
  • 温水洗浄便座、
  • 洗面所、
  • 洗面台、
  • シャンプードレッサー、
  • 洗面化粧台、
  • 洗濯機置場、
  • 室内洗濯機置場、
  • 洗面所独立、
  • 独立洗面脱衣所、
  • 脱衣所、
  • 暖房便座、
  • バス あり、
  • バルコニー、
  • LDK12畳以上、
  • 全居室フローリング、
  • 和室有、
  • 内装リフォーム、
備考
小学校区 横手小学校 中学校区 横手中学校
物件番号 b2235061 取引態様 仲介
現況 空家 有効期限 2026年02月12日
アンピール大橋南 106についてのお問い合わせ
店舗写真
  • 福岡市南区向野1-21-6

免許番号:福岡県知事免許(4)第16246号

アンピール大橋南 106に似ているお部屋

アンピール大橋南 106

電話で問い合わせ
メールで問い合わせ
お気に入り登録