ネオハイツ大名Ⅱ 5F

西鉄福岡(天神)駅まで徒歩6分、敷金・礼金ゼロ、事務所使用可、オートロック、オール電化
賃料 / 管理費 4.5万円 / 5,000円 敷金 / 礼金 無 / 無
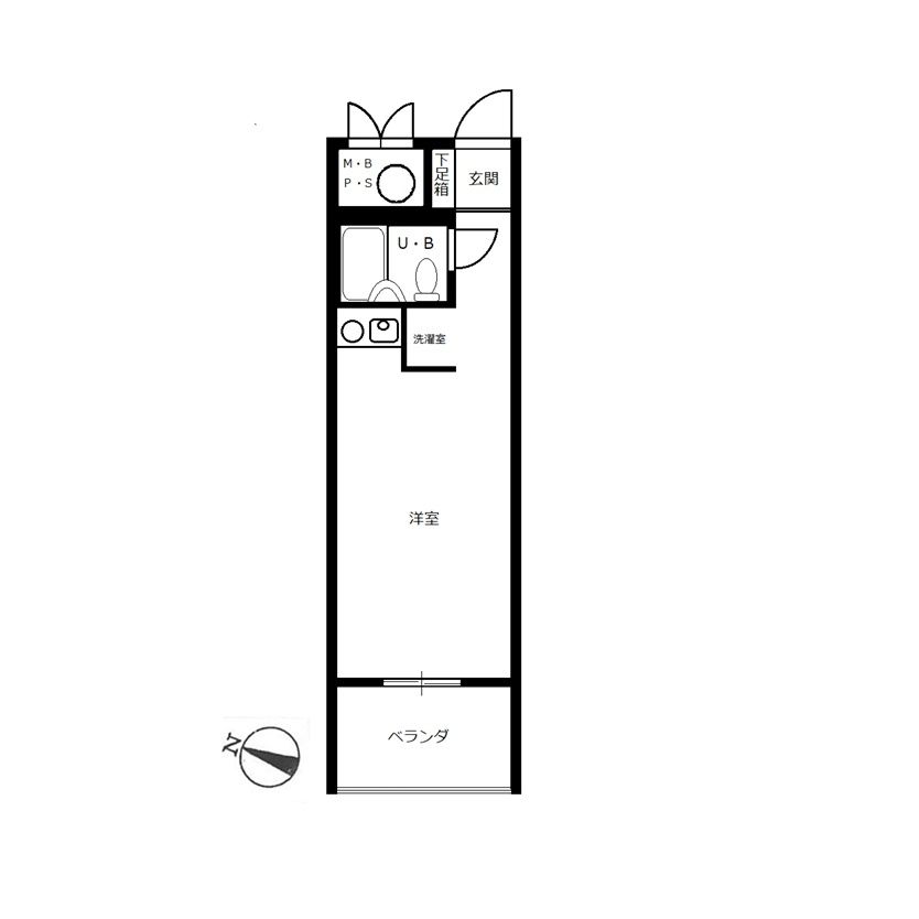
間取り / 面積 ワンルーム / 22.68㎡ 築年数 築40年10ヶ月
住所 福岡市中央区大名一丁目15-31
交通
  • 西鉄天神大牟田線
  • 西鉄福岡(天神)駅
  • 歩6分
  • 福岡市営地下鉄七隈線
  • 天神南駅
  • 歩9分
  • 福岡市営地下鉄空港線
  • 赤坂駅
  • 歩10分
外観画像
外観画像
間取り図
間取り図
種別 マンション 駐車場 空無
物件構造 SRC造 所在階 / 階数 5階 / 10階建
間取り内訳 専有面積 22.68㎡
主要採光面 西 引渡し 相談
設備
  • 分譲タイプ、
  • 外観タイル張り、
  • システムキッチン、
  • IHクッキングヒーター、
  • オール電化、
  • 1口、
  • IH、
  • 設置済み、
  • フローリング、
  • 照明器具付き、
  • 収納スペース、
  • 玄関収納、
  • シューズボックス、
  • 事務所使用 可、
  • 自動ロック、
  • TVモニタ付きインターホン、
  • インターホン、
  • 給湯、
  • エレベータ、
  • 駐輪場、
  • 集合郵便受け、
  • バイク置場(屋外)、
  • トイレ、
  • バス・トイレ 同室、
  • シャワー、
  • 洗面台、
  • 洗濯機置場、
  • 室内洗濯機置場、
  • バス あり、
  • バルコニー、
  • ペット不可、
  • 冷房、
  • 暖房、
  • エアコン、
備考
小学校区 警固小学校 中学校区 舞鶴中学校
物件番号 b2268308 取引態様 仲介
現況 居住中 有効期限 2026年02月05日
ネオハイツ大名Ⅱ 5Fについてのお問い合わせ
店舗写真
  • 福岡市博多区博多駅東1-12-7
  • 第13岡部ビル2F

免許番号:福岡県知事免許(4)第16246号

ネオハイツ大名Ⅱ 5Fに似ているお部屋

ネオハイツ大名Ⅱ 5F

電話で問い合わせ
メールで問い合わせ
お気に入り登録