ペット相談可、六本松駅まで徒歩8分
| 賃料 / 管理費 | 8.5万円 / ― | 敷金 / 礼金 | 1ヶ月 / 2ヶ月 |
|---|---|---|---|
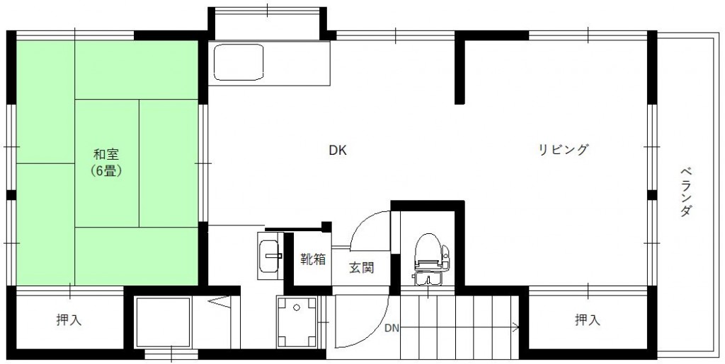
| 間取り / 面積 | 1LDK / 38.92㎡ | 築年数 | 築78年0ヶ月 |
| 住所 | 福岡市中央区六本松一丁目4-30 | ||
| 交通 |
|
||
| 種別 | アパート | 駐車場 | なし |
|---|---|---|---|
| 物件構造 | 木造 | 所在階 / 階数 | 2階 / 2階建 |
| 間取り内訳 | 専有面積 | 38.92㎡ | |
| 主要採光面 | ― | 引渡し | 相談 |
| 設備 |
|
||
| 備考 | |||
| 小学校区 | 草ヶ江小学校 | 中学校区 | 城西中学校 |
| 物件番号 | b2268907 | 取引態様 | 仲介 |
| 現況 | 空家 | 有効期限 | 2026年02月08日 |