天神プレイス ウエスト 1403

薬院駅まで徒歩7分、広々LDK12畳以上、オール電化、天神南駅まで徒歩7分
賃料 / 管理費 12.3万円 / 5,000円 敷金 / 礼金 無 / 2ヶ月
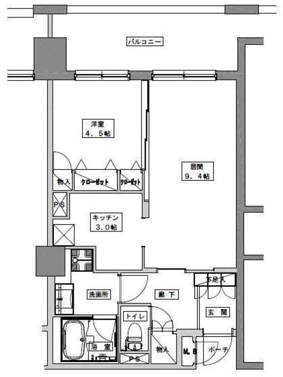
間取り / 面積 1LDK / 45.58㎡ 築年数 築18年1ヶ月
住所 福岡市中央区今泉一丁目2-20
交通
  • 西鉄天神大牟田線
  • 薬院駅
  • 歩7分
  • 福岡市営地下鉄七隈線
  • 天神南駅
  • 歩7分
  • 西鉄天神大牟田線
  • 西鉄福岡(天神)駅
  • 歩8分
外観画像
外観画像
間取り図
間取り図
種別 マンション 駐車場 空有 33,000円
物件構造 RC造 所在階 / 階数 14階 / 17階建
間取り内訳 LDK12.4/洋4.5 専有面積 45.58㎡
主要採光面 南西 引渡し 相談
設備
  • 高層階、
  • 日当り良好、
  • 24時間有人管理、
  • システムキッチン、
  • IHクッキングヒーター、
  • オール電化、
  • 3口コンロ以上、
  • 3口、
  • IH、
  • 設置済み、
  • フローリング、
  • 人感照明センサー、
  • 可動間仕切り、
  • 収納スペース、
  • 全居室収納、
  • 玄関収納、
  • クロゼット、
  • シューズボックス、
  • 二人入居可 可、
  • ディンプルキー、
  • TVモニタ付きインターホン、
  • 24時間セキュリティ、
  • 防犯カメラ、
  • 防犯セキュリティ、
  • インターホン、
  • 給湯、
  • エレベータ、
  • 宅配ボックス、
  • 駐輪場、
  • 24時間換気システム、
  • エレベーター2基、
  • 敷地内ゴミ置き場、
  • ゴミ置き場、
  • 免震構造、
  • BS端子、
  • CS、
  • 追焚機能、
  • トイレ、
  • バス・トイレ 別室、
  • シャワー、
  • 温水洗浄便座、
  • 洗面所、
  • 洗面台、
  • シャンプードレッサー、
  • 洗面化粧台、
  • 洗濯機置場、
  • 室内洗濯機置場、
  • 浴室乾燥機、
  • 洗面所独立、
  • オートバス、
  • 独立洗面脱衣所、
  • 脱衣所、
  • バス あり、
  • 浴室暖房、
  • バルコニー、
  • ペット不可、
  • LDK12畳以上、
  • 全居室フローリング、
  • 冷房、
  • 暖房、
  • エアコン、
  • エアコン2台、
備考
小学校区 警固小学校 中学校区 警固中学校
物件番号 b2307185 取引態様 仲介
現況 居住中 有効期限 2026年04月27日
天神プレイス ウエスト 1403についてのお問い合わせ
店舗写真
  • 福岡市博多区博多駅東1-12-7
  • 第13岡部ビル2F

免許番号:福岡県知事免許(4)第16246号

天神プレイス ウエスト 1403に似ているお部屋

天神プレイス ウエスト 1403

電話で問い合わせ
メールで問い合わせ
お気に入り登録